Вместе теплее
ВАШ ГОРОД
Строительство частных каркасных домов из СИП-панелей под ключ

+7 (901) 479-14-55

Telegram, WhatsApp, Viber

0
Строительство частных каркасных домов из СИП-панелей под ключ
Каталог товаров
Новости
10-10-2025 Индивидуальное проектирование или типовой проект?

Когда потенциальный заказчик говорит: "Мне какой-нибудь типовой проект дома", это сигнализирует о том, что он еще не определился с тем, что именно хочет. Давайте разберемся, почему индивидуальное проектирование ...

Далее...
08-10-2025 Отправляем домокомплект на гараж в Нарьян-Мар, НАО!

Мы рады сообщить, что наш новый проект по строительству гаража в Нарьян-Маре уже на старте! В этом проекте мы используем современные технологии и материалы, чтобы обеспечить надежность и ...

Далее...
Мы в соцсетях

Индивидуальное проектирование или типовой проект?

Когда потенциальный заказчик говорит: "Мне какой-нибудь типовой проект дома", это сигнализирует о том, что он еще не определился с тем, что именно хочет. Давайте разберемся, почему индивидуальное проектирование — это лучший выбор!

 

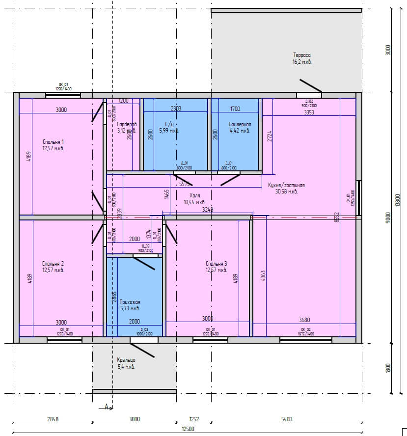
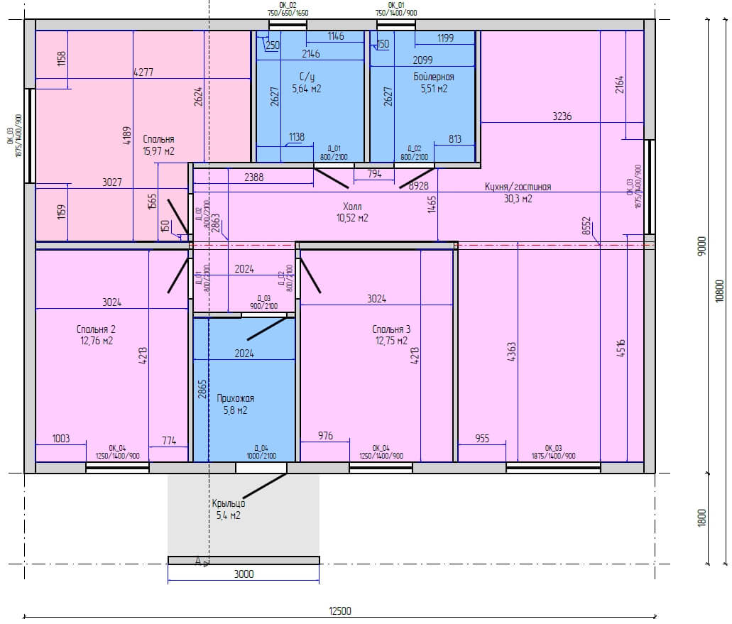
Посмотрите на эти четыре дома: у них одинаковая начальная планировка, но как же они отличаются! Каждый из них стал уникальным под желания и предпочтения своих владельцев.

 

готовый проект дома из сип панелей 100 кв м 1 готовый проект дома из сип панелей 100 кв м 1
готовый проект дома из сип панелей 100 кв м 1 готовый проект дома из сип панелей 100 кв м 1

 

Ваш дом — это не просто стены и крыша, это отражение вашего стиля жизни, ваших мечт и предпочтений.

 

Индивидуальный проект — это не просто набор стандартных решений. Это возможность учесть все ваши "хотелки", особенности участка, стороны света и виды из окна.

Частный дом — это не квартира с типовой планировкой, это возможность реализовать свои идеи и мечты!

 

К сожалению, многие заказчики пытаются адаптировать свои желания под уже готовые проекты, думая, что "всё устраивает". Но потом начинается: "А дверь можно перенести?", "Кухню бы побольше", "Окно бы панорамное".

И вот тут-то и возникает необходимость в индивидуальном проектировании.

 

Совет: Все типовые планировки — это лишь основа для размышлений.

Лучше сразу обращаться к индивидуальному проектированию, чтобы избежать недовольства в будущем.

 

И еще один важный момент: проект типового дома не дешевле!

Индивидуальный проект сначала оплачивается, но затем вычитается из сметы на домокомплект, так что в конечном итоге он оказывается бесплатным!

 

Не упустите возможность создать дом своей мечты!

 

#ИндивидуальноеПроектирование #ТиповойПроект #ДомМечты #Строительство #Архитектура #ДизайнИнтерьера #Планировка #СоветыПоСтроительству #УникальныйДом

Написать нам письмо

Отправить

Заказать обратный звонок

Отправить