Вместе теплее
ВАШ ГОРОД
Строительство частных каркасных домов из СИП-панелей под ключ

+7 (901) 479-14-55

Telegram, WhatsApp, Viber

0
Строительство частных каркасных домов из СИП-панелей под ключ
Проекты домов
Новости
17-10-2025 Возвращаемся к фото строительства парка отеля в Нижнеивкино!

Дорогие друзья, рады поделиться с вами новыми новостями о нашем проекте! Мы переходим к завершающему этапу строительства глэмпингов на склоне. Эта линия будет состоять из пяти уютных угловых домиков отдыха, ...

Далее...
16-10-2025 Стройка дома из СИП панелей в Нарьян-Маре в следующем году!

Дорогие друзья! С радостью сообщаем, что в следующем году мы готовы взять на себя строительство вашего дома из СИП панелей в Нарьян-Маре! Это отличный выбор для тех, кто ценит комфорт, тепло и ...

Далее...
Мы в соцсетях

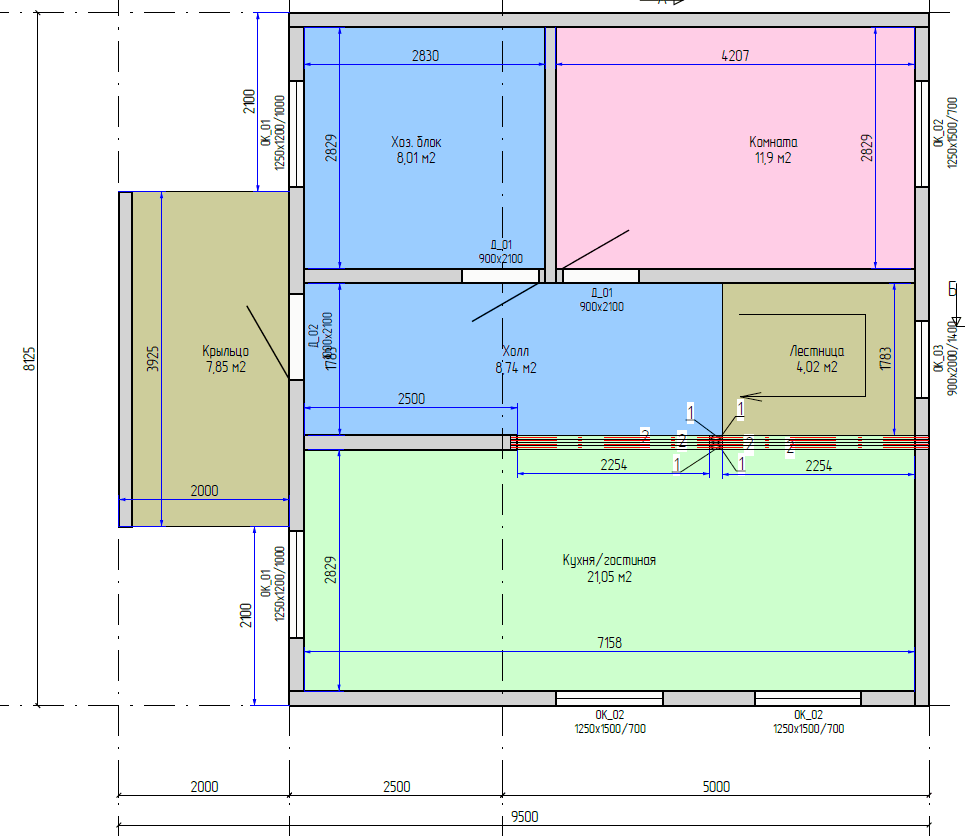
Т-139

Построен

Планировка

  • Т-139
  • Общая площадь: 101 м²
  • Размер дома: 8,125 х 7,5 м
687 тыс.р. панелекомплект
ОРИЕНТИРОВОЧНАЯ стоимость рассчитана в комплектации:
СИП-панели с ОСП-3 с утеплителем ППС 12-14 кг/м3 ГОСТ:
Перекрытия СИП-панели толщиной 221 мм, полы усиленные;
Несущие внешние и внутренние стены СИП-панели толщиной 171 мм, высота 2,5 м.

В расчёт НЕ ВКЛЮЧЕНЫ: раскрой панелей в размер, самонесущие перегородки
1 091 тыс.р. домокомплект
ОРИЕНТИРОВОЧНАЯ стоимость рассчитана в комплектации:
1. СИП-панели ОСП-3 с утеплителем ППС 12-14 кг/м3 ГОСТ:
Перекрытия СИП-панели толщиной 221 мм, полы усиленные;
Несущие внешние и внутренние стены СИП-панели толщиной 171 мм, высота 2,5 м.
2. Раскрой СИП-панелей согласно сборочным чертежам.
3. Сухой септированный пиломатериал, строганный под СИП-панели.
4. Проект дома БЕСПЛАТНО!

В расчёт НЕ ВКЛЮЧЕНЫ: самонесущие перегородки
2 000 тыс.р. строительство
ОРИЕНТИРОВОЧНАЯ стоимость рассчитана в комплектации:
1. СИП-панели с ОСП-3 с утеплителем ППС 12-14 кг/м3 ГОСТ:
Перекрытия СИП-панели толщиной 221 мм, полы усиленные;
Несущие внешние и внутренние стены СИП-панели толщиной 171 мм, высота 2,5 м.
2. Раскрой СИП-панелей согласно сборочным чертежам.
3. Сухой септированный пиломатериал, строганный под СИП-панели.
4. Проект дома БЕСПЛАТНО!
5. Фундамент на забивных ЖБ сваях 150х150х3000 мм с оголовками.
6. Пиломатериал сухой строганный септированный на обвязку свай, крышу и кровлю.
7. Металлочерепица GrandLine классик 0,45 мм с доборными элементами.
8. Строительство СИП-дома в Кировской области.

В расчёт НЕ ВКЛЮЧЕНЫ: самонесущие перегородки, крыльцо, терраса, балкон, окна, двери, вентиляция, подшив кровли, внешняя и внутренняя отделка, доставка, командировочные при монтаже в других регионах

Получить индивидуальный расчет

Количество этажей :1 + мансарда
Количество комнат :4
Наличие гаража :нет

 

ЧТО ВХОДИТ В СТОИМОСТЬ ДОМОКОМПЛЕКТА И СТРОИТЕЛЬСТВА ДОМА ИЗ СИП-ПАНЕЛЕЙ?

 


 

Готовый проект.


К каждой планировке можно добавить гараж или навес для автомобиля. Что-то не подходит? Нет проблем! Обращайтесь, и мы создадим для Вас индивидуальный проект совершенно БЕСПЛАТНО! В комплектацию и планировки дома можно внести любые изменения! Связаться с менеджером

Выберите вид СИП-панелей:



Подбор индивидуальной комплектации:

Домокомплект

Разработка сборочных чертежей:

Толщины теплового контура:

Внутренние стены:

Строительство

Устройство фундамента:

Монтаж кровли с материалами:

Монтаж окон ПВХ:

Монтаж вентиляции:

Монтаж внешней отделки:

Регион строительства:

Ваш телефон:

Ваш email:

Рассчитать

Написать нам письмо

Отправить

Заказать обратный звонок

Отправить