Вместе теплее
ВАШ ГОРОД
Строительство частных каркасных домов
из СИП-панелей под ключ

+7 (901) 479-14-55 Telegram, MAX

vk.com/termopanel43

0
Строительство частных каркасных домов 
из СИП-панелей под ключ
Проекты домов
Новости
04-02-2026 Новый этап строительства: монтаж стропильной холодной чердачной системы!

Дорогие друзья! Мы рады поделиться с вами очередной важной вехой в нашем проекте! В Садаковском, Киров, мы приступили к монтажу стропильной холодной чердачной системы на доме из СИП панелей. Это важный шаг, который ...

Далее...
03-02-2026 Чудо чердачного перекрытия: СИП панели в действии!

Друзья, у нас отличные новости! В доме в Садаковском, Киров, завершено строительство чердачного перекрытия из СИП панелей толщиной 221 мм! Это не просто потолок — это надежная защита вашего дома от холода и шумов, ...

Далее...
Мы в соцсетях

Т-217

Построен

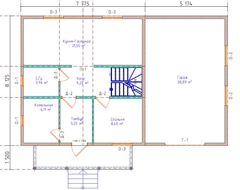
Планировка

  • Т-217
  • Общая площадь: 169 м²
  • Размер дома: 13 х 8,125 м
1 208 тыс.р. панелекомплект
ОРИЕНТИРОВОЧНАЯ стоимость рассчитана в комплектации:
СИП-панели с ОСП-3 с утеплителем ППС 14 кг/м3 ГОСТ:
Перекрытия СИП-панели толщиной 221 мм, полы усиленные;
Несущие внешние и внутренние стены СИП-панели толщиной 171 мм, высота 2,5 м.

В расчёт НЕ ВКЛЮЧЕНЫ: раскрой панелей в размер, самонесущие перегородки
1 896 тыс.р. домокомплект
ОРИЕНТИРОВОЧНАЯ стоимость рассчитана в комплектации:
1. СИП-панели ОСП-3 с утеплителем ППС 14 кг/м3 ГОСТ:
Перекрытия СИП-панели толщиной 221 мм, полы усиленные;
Несущие внешние и внутренние стены СИП-панели толщиной 171 мм, высота 2,5 м.
2. Раскрой СИП-панелей согласно сборочным чертежам.
3. Сухой септированный пиломатериал, строганный под СИП-панели.
4. Проект дома БЕСПЛАТНО!

В расчёт НЕ ВКЛЮЧЕНЫ: самонесущие перегородки
3 625 тыс.р. строительство
ОРИЕНТИРОВОЧНАЯ стоимость рассчитана в комплектации:
1. СИП-панели с ОСП-3 с утеплителем ППС 14 кг/м3 ГОСТ:
Перекрытия СИП-панели толщиной 221 мм, полы усиленные;
Несущие внешние и внутренние стены СИП-панели толщиной 171 мм, высота 2,5 м.
2. Раскрой СИП-панелей согласно сборочным чертежам.
3. Сухой септированный пиломатериал, строганный под СИП-панели.
4. Проект дома БЕСПЛАТНО!
5. Фундамент на забивных ЖБ сваях 150х150х3000 мм с оголовками.
6. Пиломатериал сухой строганный септированный на обвязку свай, крышу и кровлю.
7. Металлочерепица GrandLine классик 0,45 мм с доборными элементами.
8. Строительство СИП-дома в Кировской области.

В расчёт НЕ ВКЛЮЧЕНЫ: самонесущие перегородки, крыльцо, терраса, балкон, окна, двери, вентиляция, подшив кровли, внешняя и внутренняя отделка, доставка, командировочные при монтаже в других регионах

Получить индивидуальный расчет

Количество этажей :2
Количество комнат :6
Наличие гаража :есть

 

ЧТО ВХОДИТ В СТОИМОСТЬ ДОМОКОМПЛЕКТА И СТРОИТЕЛЬСТВА ДОМА ИЗ СИП-ПАНЕЛЕЙ?

 


 

Готовый проект.

Посмотреть фото реализации проекта Т-217


К каждой планировке можно добавить гараж или навес для автомобиля. Что-то не подходит? Нет проблем! Обращайтесь, и мы создадим для Вас индивидуальный проект совершенно БЕСПЛАТНО! В комплектацию и планировки дома можно внести любые изменения! Связаться с менеджером

Выберите вид СИП-панелей:



Подбор индивидуальной комплектации:

Домокомплект

Разработка сборочных чертежей:

Толщины теплового контура:

Внутренние стены:

Строительство

Устройство фундамента:

Монтаж кровли с материалами:

Монтаж окон ПВХ:

Монтаж вентиляции:

Монтаж внешней отделки:

Регион строительства:

Ваш телефон:

Ваш email:

Рассчитать

Написать нам письмо

Отправить

Заказать обратный звонок

Отправить