Вместе теплее
ВАШ ГОРОД
Строительство частных каркасных домов
из СИП-панелей под ключ

+7 (901) 479-14-55 Telegram, MAX

vk.com/termopanel43

0
Строительство частных каркасных домов 
из СИП-панелей под ключ
Проекты домов
Новости
14-01-2026 Продолжаем наш захватывающий репортаж о строительстве дома из СИП панелей по семейной ипотеке в Стулово, Киров!

Сегодня мы переходим к важному этапу — монтажу внешних стен. Наши стены имеют толщину 171 мм и высоту 2,8 м, что обеспечивает отличную теплоизоляцию и долговечность. Однако, как вы понимаете, монтаж такой конструкции ...

Далее...
13-01-2026 Строительство частного дома из СИП панелей в Стулово: первый шаг к вашему идеальному жилью!

Дорогие друзья! Мы рады сообщить, что начали строительство частного дома из СИП панелей в живописном селе Стулово (Слободской, Киров)! Первый этап — надёжный фундамент.   Мы уверенно подошли к этому ...

Далее...
Мы в соцсетях

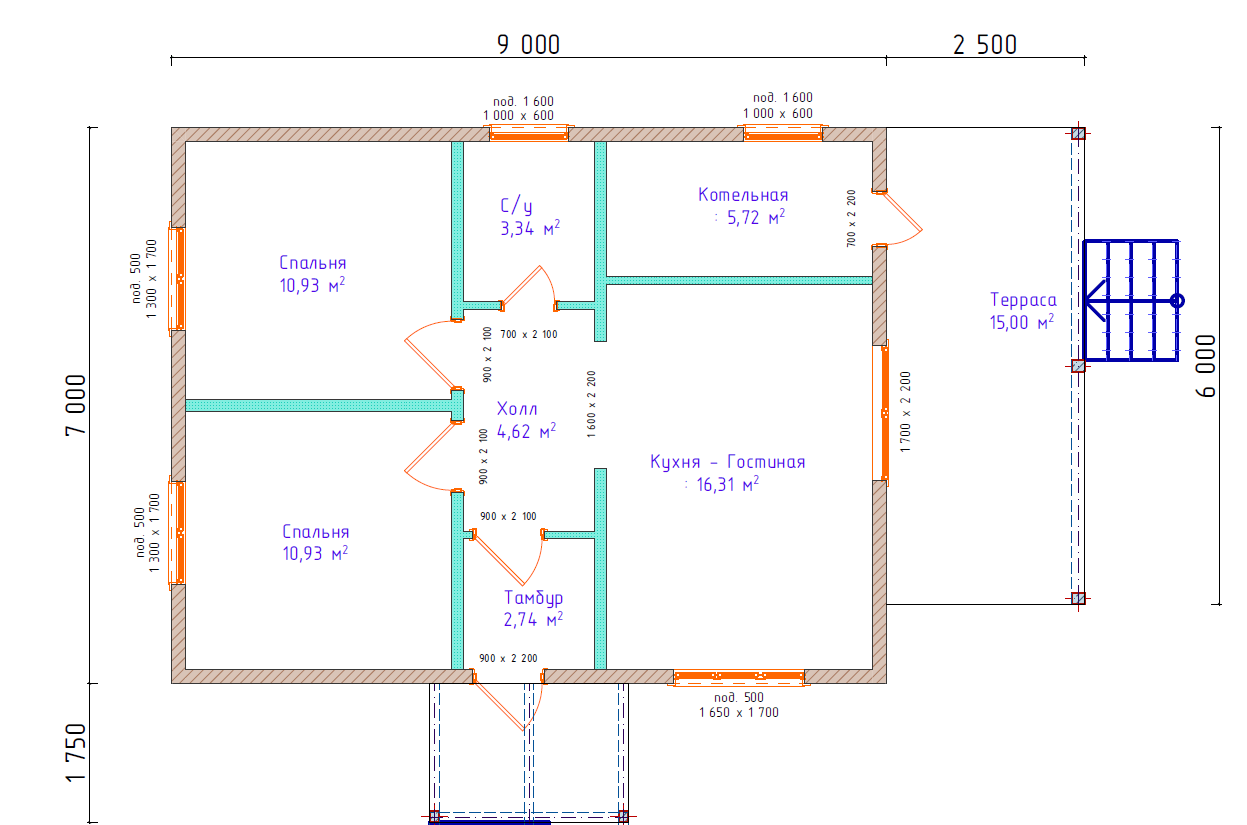
Т-051

Построен Хит

Планировка

  • Т-051
  • Общая площадь: 63 м²
  • Размер дома: 9 х 7 м
520 тыс.р. панелекомплект
ОРИЕНТИРОВОЧНАЯ стоимость рассчитана в комплектации:
СИП-панели с ОСП-3 с утеплителем ППС 14 кг/м3 ГОСТ:
Перекрытия СИП-панели толщиной 221 мм, полы усиленные;
Несущие внешние и внутренние стены СИП-панели толщиной 171 мм, высота 2,5 м.

В расчёт НЕ ВКЛЮЧЕНЫ: раскрой панелей в размер, самонесущие перегородки
832 тыс.р. домокомплект
ОРИЕНТИРОВОЧНАЯ стоимость рассчитана в комплектации:
1. СИП-панели ОСП-3 с утеплителем ППС 14 кг/м3 ГОСТ:
Перекрытия СИП-панели толщиной 221 мм, полы усиленные;
Несущие внешние и внутренние стены СИП-панели толщиной 171 мм, высота 2,5 м.
2. Раскрой СИП-панелей согласно сборочным чертежам.
3. Сухой септированный пиломатериал, строганный под СИП-панели.
4. Проект дома БЕСПЛАТНО!

В расчёт НЕ ВКЛЮЧЕНЫ: самонесущие перегородки
1 871 тыс.р. строительство
ОРИЕНТИРОВОЧНАЯ стоимость рассчитана в комплектации:
1. СИП-панели с ОСП-3 с утеплителем ППС 14 кг/м3 ГОСТ:
Перекрытия СИП-панели толщиной 221 мм, полы усиленные;
Несущие внешние и внутренние стены СИП-панели толщиной 171 мм, высота 2,5 м.
2. Раскрой СИП-панелей согласно сборочным чертежам.
3. Сухой септированный пиломатериал, строганный под СИП-панели.
4. Проект дома БЕСПЛАТНО!
5. Фундамент на забивных ЖБ сваях 150х150х3000 мм с оголовками.
6. Пиломатериал сухой строганный септированный на обвязку свай, крышу и кровлю.
7. Металлочерепица GrandLine классик 0,45 мм с доборными элементами.
8. Строительство СИП-дома в Кировской области.

В расчёт НЕ ВКЛЮЧЕНЫ: самонесущие перегородки, крыльцо, терраса, балкон, окна, двери, вентиляция, подшив кровли, внешняя и внутренняя отделка, доставка, командировочные при монтаже в других регионах

Получить индивидуальный расчет

Количество этажей :1
Количество комнат :3
Наличие гаража :нет

 

ЧТО ВХОДИТ В СТОИМОСТЬ ДОМОКОМПЛЕКТА И СТРОИТЕЛЬСТВА ДОМА ИЗ СИП-ПАНЕЛЕЙ?

 



Готовый проект.

Посмотреть фото реализации проекта Т-051, д. Голодница, Киров

Посмотреть фото реализации проекта Т-051, п. Садаковский, Киров


К каждой планировке можно добавить гараж или навес для автомобиля. Что-то не подходит? Нет проблем! Обращайтесь, и мы создадим для Вас индивидуальный проект совершенно БЕСПЛАТНО! В комплектацию и планировки дома можно внести любые изменения! Связаться с менеджером

Выберите вид СИП-панелей:



Подбор индивидуальной комплектации:

Домокомплект

Разработка сборочных чертежей:

Толщины теплового контура:

Внутренние стены:

Строительство

Устройство фундамента:

Монтаж кровли с материалами:

Монтаж окон ПВХ:

Монтаж вентиляции:

Монтаж внешней отделки:

Регион строительства:

Ваш телефон:

Ваш email:

Рассчитать

Написать нам письмо

Отправить

Заказать обратный звонок

Отправить