Вместе теплее
ВАШ ГОРОД
Строительство частных каркасных домов из СИП-панелей под ключ

+7 (901) 479-14-55

Telegram, WhatsApp, Viber

0
Строительство частных каркасных домов из СИП-панелей под ключ
Проекты домов
Новости
12-12-2025 Октябрь в Омутнинске: солнечные дни и новые дома!

Дорогие друзья! Не успеваю делиться с вами всеми нашими строительными проектами, но сегодня хочу представить вам очередной фоторепортаж из Омутнинска, Кировская область. Здесь, под тёплыми лучами осеннего солнца, ...

Далее...
11-12-2025 Ура! Мы успешно завершили строительство дома из СИП-панелей в Тельвиске, НАО!

Хотите узнать стоимость такого дома? Пишите/звоните, и мы с радостью ответим вам!   Мы рады сообщить, что наш новый проект по установке теплового контура из СИП-панелей завершен! Этот уютный дом размером 10х10 м ...

Далее...
Мы в соцсетях

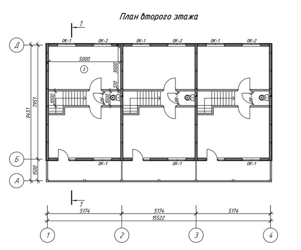
Т-002 (таунхаус)

Построен

Планировка

  • Т-002 (таунхаус)
  • Общая площадь: 304 м²
  • Размер дома: 15,522 х 9,451 м
1 976 тыс.р. панелекомплект
ОРИЕНТИРОВОЧНАЯ стоимость рассчитана в комплектации:
СИП-панели с ОСП-3 с утеплителем ППС 14 кг/м3 ГОСТ:
Перекрытия СИП-панели толщиной 221 мм, полы усиленные;
Несущие внешние и внутренние стены СИП-панели толщиной 171 мм, высота 2,5 м.

В расчёт НЕ ВКЛЮЧЕНЫ: раскрой панелей в размер, самонесущие перегородки
3 101 тыс.р. домокомплект
ОРИЕНТИРОВОЧНАЯ стоимость рассчитана в комплектации:
1. СИП-панели ОСП-3 с утеплителем ППС 14 кг/м3 ГОСТ:
Перекрытия СИП-панели толщиной 221 мм, полы усиленные;
Несущие внешние и внутренние стены СИП-панели толщиной 171 мм, высота 2,5 м.
2. Раскрой СИП-панелей согласно сборочным чертежам.
3. Сухой септированный пиломатериал, строганный под СИП-панели.
4. Проект дома БЕСПЛАТНО!

В расчёт НЕ ВКЛЮЧЕНЫ: самонесущие перегородки
5 928 тыс.р. строительство
ОРИЕНТИРОВОЧНАЯ стоимость рассчитана в комплектации:
1. СИП-панели с ОСП-3 с утеплителем ППС 14 кг/м3 ГОСТ:
Перекрытия СИП-панели толщиной 221 мм, полы усиленные;
Несущие внешние и внутренние стены СИП-панели толщиной 171 мм, высота 2,5 м.
2. Раскрой СИП-панелей согласно сборочным чертежам.
3. Сухой септированный пиломатериал, строганный под СИП-панели.
4. Проект дома БЕСПЛАТНО!
5. Фундамент на забивных ЖБ сваях 150х150х3000 мм с оголовками.
6. Пиломатериал сухой строганный септированный на обвязку свай, крышу и кровлю.
7. Металлочерепица GrandLine классик 0,45 мм с доборными элементами.
8. Строительство СИП-дома в Кировской области.

В расчёт НЕ ВКЛЮЧЕНЫ: самонесущие перегородки, крыльцо, терраса, балкон, окна, двери, вентиляция, подшив кровли, внешняя и внутренняя отделка, доставка, командировочные при монтаже в других регионах

Получить индивидуальный расчет

Количество этажей :2

 

ЧТО ВХОДИТ В СТОИМОСТЬ ДОМОКОМПЛЕКТА И СТРОИТЕЛЬСТВА ДОМА ИЗ СИП-ПАНЕЛЕЙ?

 



Посмотреть фото реализации проекта Т-002 (таунхаус на 3 семьи)


К каждой планировке можно добавить гараж или навес для автомобиля. Что-то не подходит? Нет проблем! Обращайтесь, и мы создадим для Вас индивидуальный проект совершенно БЕСПЛАТНО! В комплектацию и планировки дома можно внести любые изменения! Связаться с менеджером

Выберите вид СИП-панелей:



Подбор индивидуальной комплектации:

Домокомплект

Разработка сборочных чертежей:

Толщины теплового контура:

Внутренние стены:

Строительство

Устройство фундамента:

Монтаж кровли с материалами:

Монтаж окон ПВХ:

Монтаж вентиляции:

Монтаж внешней отделки:

Регион строительства:

Ваш телефон:

Ваш email:

Рассчитать

Написать нам письмо

Отправить

Заказать обратный звонок

Отправить